







Industrial Unit To Let Plymouth
PROPERTY ID: 129067
PROPERTY TYPE
Industrial Unit
STATUS
Let Agreed
SIZE
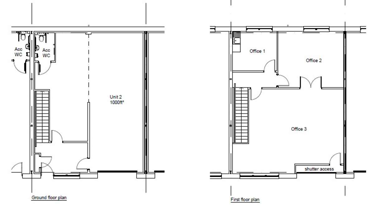
1,943 sq.ft
Key Features
Property Details
Langage South Forms The Newest Part Of Plymouth's Premier Industrial Estate, 7 Miles East Of The City Centre And Just Over A Mile From The Deep Lane (plympton) Junction Of The A38 Dual Carriageway, Which Links Devon With Cornwall To The West And To The M5 At Exeter, 35 Miles To The East. Nearby Occupiers Include: Princess Yachts, Thirsty Work, Knowhow, Fergusons Transport, Audi Sw And Williams Southern.<br/><br/>entrance Foyer With Stairs To First Floor And Access Into Ground Floor Warehouse / Workshop Area. Fitted Throughout With Suspended Ceiling And Led Panel Lighting, Roller Shutter Door To Front, Dda Compliant Wc.<br/>first Floor Offices Fitted With Open Plan Office Suite, Managers Office And Welfare Facilities, Suspended Ceilings With Panel Led Lighting Throughout.<br/><br/><br/><br/><br/>